Trong bối cảnh nhu cầu thuê nhà ở đô thị ngày càng tăng, đặc biệt là các mô hình căn hộ coliving hiện đại, việc đầu tư xây dựng nhà phố vừa đảm bảo công năng, vừa tối ưu chi phí xây nhà và tính thẩm mỹ của ngôi nhà là điều nhà đầu tư quan tâm. Mẫu thiết kế căn hộ coliving cho thuê 5 tầng 5x11m dưới đây chính là ví dụ tiêu biểu – sự kết hợp hài hòa giữa tiện nghi, thẩm mỹ và hiệu quả khai thác kinh doanh.

Mẫu thiết kế căn hộ Coliving cho thuê 5 tầng 5x11m
Mẫu nhà 5 tầng 5x11m – Giải pháp sinh lợi hiệu quả cho chủ đầu tư tại TP.HCM
Mặt tiền công trình được thiết kế theo phong cách kiến trúc hiện đại, với các mảng khối vuông vức, đường nét tinh gọn, tạo nên vẻ đẹp thời thượng và trẻ trung. Gam màu trắng chủ đạo kết hợp cùng điểm nhấn nâu đất và ban công lan can sắt sơn tĩnh điện màu đen mang lại cảm giác vững chắc, bền bỉ theo thời gian.
Khu vực tầng trệt ốp đá granite tối màu giúp công trình xây dựng trở nên nổi bật, đồng thời tăng độ bền cho phần chân tường – vị trí thường xuyên tiếp xúc với bụi và mưa nắng. Các tầng lầu được thiết kế đồng nhất, ban công nhỏ gọn kết hợp cây xanh, vừa tạo điểm nhấn thẩm mỹ vừa mang đến không gian sống thoáng đãng, gần gũi thiên nhiên.

Mẫu Thiết Kế Căn Hộ Coliving Cho Thuê 5 Tầng 5x11m
Mặt bằng công năng căn hộ coliving cho thuê – Thiết kế tối giản, sang trọng và hiện đại
Xây dựng nhà phố trên diện tích đất 5x11m ở phường Gò Vấp – TP.HCM, công trình được thiết kế khoa học, tận dụng triệt để không gian sử dụng, đảm bảo mỗi phòng đều có ánh sáng tự nhiên và WC riêng, đáp ứng đúng tiêu chí của mô hình coliving.
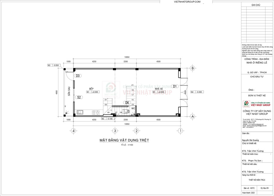
Tầng trệt – Khu vực sinh hoạt chung
Tầng trệt được bố trí khu vực để xe rộng rãi, thuận tiện cho cư dân di chuyển. Phía trong là phòng bếp – khu vực ăn uống chung, tạo không gian kết nối giữa các thành viên cùng sinh sống trong một ngôi nhà. WC nhỏ đặt dưới gầm cầu thang giúp tiết kiệm diện tích mà vẫn đảm bảo tiện nghi.

Bản vẽ thiết kế mặt bằng công năng tầng trệt
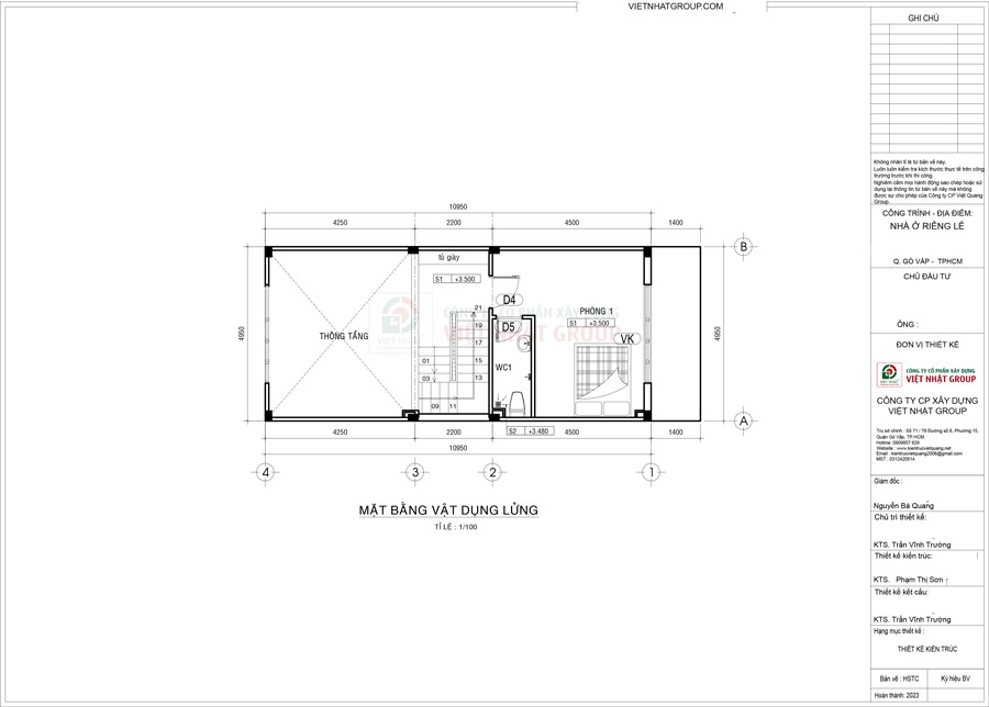
Tầng lửng – Phòng đơn tiện nghi
KTS Việt Nhật Group bố trí công năng tầng lửng gồm 01 phòng ngủ có WC khép kín, thích hợp làm không gian riêng cho chủ nhà quản lý hoặc cho thuê căn hộ cao cấp. Căn phòng có ban công lớn thông thoáng, giúp lưu thông không khí, tiếp cận ánh sáng tự nhiên.

Bản vẽ thiết kế mặt bằng công năng tầng lửng
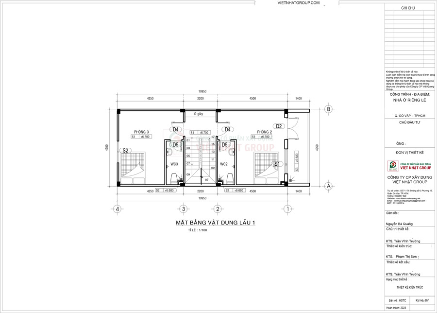
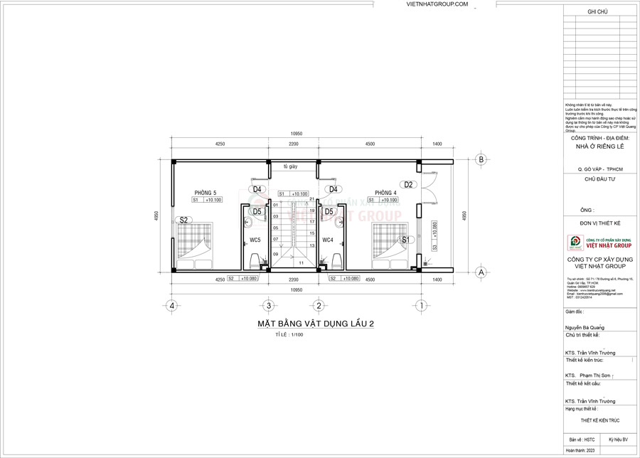
Lầu 1, lầu 2, lầu 3 – Mỗi tầng 02 phòng ngủ, WC khép kín
Ba tầng lầu được bố trí giống nhau, mỗi tầng gồm 02 phòng ngủ với nhà vệ sinh riêng trong phòng, đảm bảo sự riêng tư tối đa cho khách thuê phòng. Ngoài ra, tủ giày được thiết kế ngoài hành lang, vừa gọn gàng, vừa thuận tiện cho sinh hoạt. Cách bố trí này giúp chủ đầu tư dễ dàng quản lý và bảo trì công trình, đồng thời nâng cao trải nghiệm sống của cư dân.

Bản vẽ thiết kế mặt bằng công năng lầu 1

Bản vẽ thiết kế mặt bằng công năng lầu 2

Bản vẽ thiết kế mặt bằng công năng lầu 3
Tầng thượng – Không gian tiện ích và thư giãn
Khu vực tầng thượng được chia thành phòng giặt, sân phơi phía sau và sân thượng trước. Chủ đầu tư có thể tận dụng sân thượng trước để bố trí khu vực ngồi thư giãn, trồng cây xanh, hoặc tạo không gian sinh hoạt cộng đồng nhỏ – một điểm cộng lớn trong mô hình coliving hiện đại, giúp khách thuê phòng dễ dàng lựa chọn nơi lưu trú lý tưởng.

Bản vẽ thiết kế mặt bằng công năng tầng thượng
Mẫu nhà lý tưởng cho mô hình coliving tại TP.HCM
Với quy mô xây dựng nhà phố 1 trệt lửng 3 lầu tum sân thượng, diện tích 5x11m, mẫu căn hộ coliving cho thuê này là lựa chọn hoàn hảo cho các chủ đầu tư muốn tối ưu chi phí xây dựng nhưng vẫn đảm bảo lợi nhuận lâu dài.
Mỗi phòng đều có không gian riêng, tiện nghi đầy đủ – phù hợp với đối tượng khách thuê là nhân viên văn phòng, sinh viên hoặc người độc tân cần chỗ ở ổn định, hiện đại và có tính cộng đồng.
Không chỉ là nơi ở, mô hình coliving còn hướng tới phong cách sống chia sẻ, thân thiện – xu hướng đang được ưa chuộng tại các thành phố lớn như TP.HCM, Bình Dương, Đà Nẵng, Hà Nội.
Lợi ích đầu tư mô hình coliving 5 tầng 5x11m
- Hiệu quả khai thác cao: Mỗi tầng 02 phòng, tổng cộng 07 phòng có thể cho thuê riêng biệt.
- Chi phí vận hành thấp: Hệ thống hạ tầng gọn gàng, dễ quản lý.
- Thiết kế hiện đại, dễ bảo trì: Sử dụng vật liệu bền, chống thấm tốt, đảm bảo công trình bền vững.
- Thu hút người thuê dài hạn: Không gian thông thoáng, tiện ích đầy đủ, phù hợp xu hướng sống hiện nay.
Mẫu thiết kế căn hộ coliving cho thuê 5 tầng 5x11m là lựa chọn thông minh cho chủ đầu tư đang tìm kiếm mô hình vừa ở – vừa kinh doanh tại Tp.HCM. Sự kết hợp giữa kiến trúc hiện đại, công năng khoa học và khả năng khai thác tối ưu giúp công trình trở thành giải pháp đầu tư sinh lợi bền vững, mang lại giá trị thực cho từng mét vuông đất.
Đây có phải mẫu nhà yêu thích của bạn? Liên hệ ngay đến Việt Nhật Group để được hỗ trợ tư vấn xây dựng, báo giá xây nhà trọn gói, hỗ trợ thủ tục pháp lý đầy đủ. Hỗ trợ miễn phí, tận tâm!
Từ khóa: xây nhà trọn gói | chi phí xây nhà | sửa nhà trọn gói | báo giá sửa nhà trọn gói | xây dựng phần thô và nhân công hoàn thiện | giá xây nhà phần thô































































